電話 LINEでお問い合わせ メールメールでお問い合わせでお問い合わせ

販売物件

住まいや土地の購入にあたってなら、アールエスハウジングに一度ご相談ください。

★NEW★ ヴィレッタの杜西宮市神原C

loading...

物件詳細

交通

阪急甲陽園線「甲陽園」駅 徒歩約11分

販売価格 3980
所在地 西宮市神原12-108
総区画数 1区画
今回販売戸数 1区画
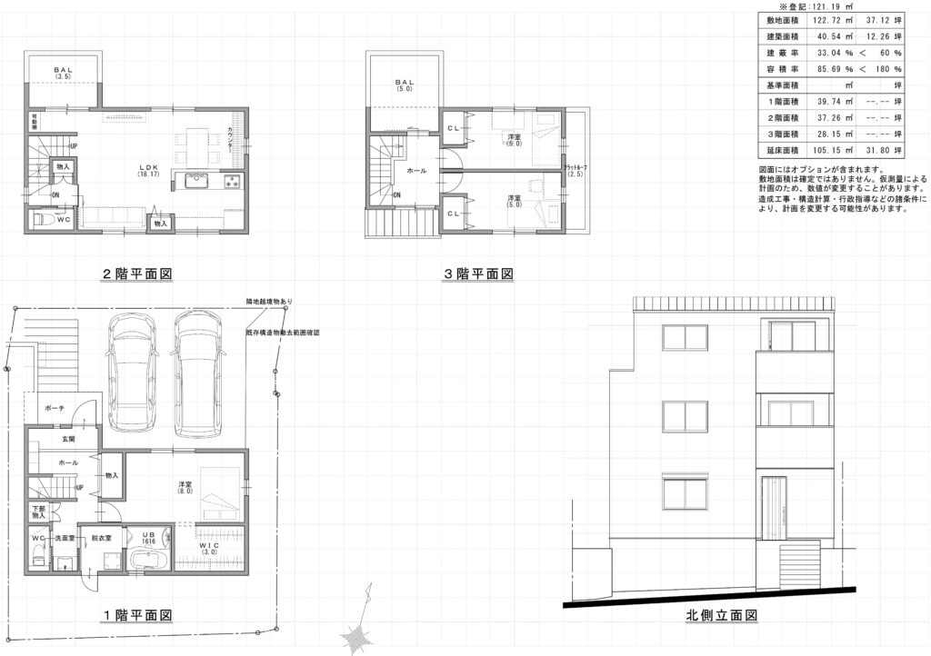
敷地面積 公簿121.19㎡
前面道路 公道・幅員約4.5m
権利 所有権
地目 宅地
用途地域 第1種中高層住居専用地域
建ぺい率 60%
容積率 200%
引渡時期 相談
取引態様 仲介

周辺地図


周辺施設

阪急苦楽園口駅 徒歩約13分

阪急甲陽園駅 徒歩約11分

関西スーパー 徒歩約11分

ロイヤルホームセンター 徒歩約11分

ウェルシア 徒歩約10分

コープ 徒歩約11分

阪急オアシス 徒歩約11分

ファミリーマート 徒歩約8分

夙川学院ソレイユ認定こども園 徒歩約6分

幼保連携型認定こども園夙川夢 徒歩約8分

株式会社
RSハウジング
西宮北口本店
〒662-0842 兵庫県西宮市芦原町4-19
TEL : 0798-39-8377 / FAX : 0798-39-8344
営業時間:09:00 ~ 20:00 定休日:水曜日
© RShousing Co.,Ltd.
ページTOPへ